00 Harmony Road Oshawa, ON L1K 2B3
Listing Courtesy of: PropTX / Listed By: Asma Nasir, Century 21 Percy Fulton Ltd. Brokerage

  00 Harmony Road Oshawa, ON L1K 2B3

Active (65 Days)
$2,400,000 (CAD)

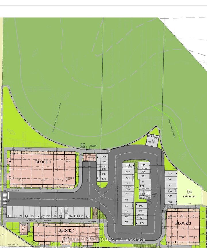
Description

Enclaved community, Draft & Site Plan approved for Twenty Four Town Homes . Six row and eighteen back to back three story towns. Water and sewer connections at the property line.

MLS®:
E12930128
Taxes
$10,300(2025)
Type
Land
County
Regional Municipality of Durham
Community
Pinecrest

Listed By

Asma Nasir, Century 21 Percy Fulton Ltd. Brokerage
Source
PropTX
Last checked May 31 2026 at 7:12 AM EDT
Bathroom Details
Utility Information
  • Utilities: None
  • Sewer: None
  • Energy: Energy Certificate: No
Powered by Walk Score®
Disclaimer: Copyright 2026 PropTX. All rights reserved. This information is deemed reliable, but not guaranteed. The information being provided is for consumers’ personal, non-commercial use and may not be used for any purpose other than to identify prospective properties consumers may be interested in purchasing. Data last updated 5/31/26 00:12